机场混凝土梯形明沟二滚轴施工技术应用
摘要
关键词
正文
1 前言
现有机场工程混凝土梯形明沟浇筑方式多为挖掘机或卷扬机配合重力式定型钢模施工,此方法存在施工效率较低、机械投入多、劳动强度大等问题。对于沟体更深、沟型更大的梯形明沟,采用此种方式更是难以施工。中铁北京工程局集团有限公司针对此类排水沟施工难点,以重庆江北国际机场T3B 航站楼及第四跑道工程飞行区场道工程七标段排水工程为依托,进行了机场工程混凝土梯形明沟二辊轴施工的研究,编制了安全可行的技术实施方案,成功解决了机场混凝土梯形明沟浇筑不便的技术难题。
机场工程混凝土梯形明沟二辊轴施工依托科研课题 2023A-重大-007 机场场道及附属结构不停航快速施工成套技术进行研究,在国内已公开发表的文献和专利中,未见有同类或相近报道。在重庆机场项目场道七标混凝土梯形明沟施工过程中已成功应用,为推广应用该项技术,总结形成。
2 特点
2.0.1 混凝土配备时加入粉煤灰、矿渣,浇筑时严格控制混凝土坍落度在 80-100mm。
2.0.2 沟体模板均使用耐久性更好、可重复周转利用、定位牢固的定制钢模。
2.0.3 混凝土振捣压实主要依靠平板振动夯机,传统插入式混凝土振捣器作为辅助。
2.0.4 选用二辊轴振动整平机作为混凝土浇筑主要施工机具,不再依赖挖掘机或卷扬机等大型设备。
3 适用范围
本工法适用于各类机场、公路工程中各尺寸的梯形明沟沟体混凝土浇筑施工。
4 工艺原理
我单位承建的重庆江北机场项目混凝土梯形明沟沟体坡度均为 1:1,沟体侧壁厚度为 200mm,混凝土强度 C30,每 10m 一个仓位设置伸缩缝。根据其结构特点,通过试验优化混凝土配合比设计,水泥型号选用 P.O 42.5R,混凝土配备时按照一定比例掺入粉煤灰和矿渣。施工时依据当日天气状况,在
混凝土拌合时加入聚羧酸系高性能减水剂和速凝剂,外加剂用量一般为减水剂掺量为 0.8%,速凝剂掺量为 5%。使用二辊轴振动整平机施工代替传统浇筑方法,仓位 5m 位置安放钢管作为二辊轴行进轨道,作业人员在沟顶提前准备,开机后匀速拉动二辊轴,使其平稳缓慢行进,充分将沟体每一处混凝土振实、提浆、找平,从而解决了传统施工方法效率低下、施工不便的难题。
5 工艺流程及操作要点
5.1 施工工艺流程
施工工艺流程如图 5.1 所示。
图 5.1 施工工艺流程图
5.2 操作要点
5.2.1 施工准备
1 技术准备:熟悉施工图纸,编制可行的施工方案,同时提交混凝土配合比报告,经过监理、建设单位审批同意后实施,依据审批的方案对相关作业人员进行安全技术交底,告知施工过程注意要点, 保证施工有序进行。
2 材料、设备准备:根据计划安排材料设备进场,进场材料设备必须满足以下要求:原材料须具备合格证及复检报告,施工所用机具设备通过验收后方可使用,测量试验仪器必须经过专业计量所检定后使用,确保施工质量可控。
3 场地准备:现场踏勘,测量施工区域原地面高程,并对施工区域进行整平后测量放线;根据施工现场情况合理规划施工便道,保证机械材料进场顺畅。
5.2.2 土石方开挖
根据测量放样出的控制线进行土石方开挖,开挖出的土石方随挖随清,不得长时间堆放在沟槽两 侧,并对沟槽两侧进行清理整平以便后续施工。按照设计坡比修整边坡,修整好的边坡应平整、坚实, 表面无松散土、石块附着;土方开挖过程中,测量人员跟踪测量,防止欠挖造成水沟结构厚度不足, 同时控制超挖避免混凝土超量,及时检查开挖坡度,开挖坡度直接决定水沟最终坡度,必须确保开挖 坡度的准确性。开挖坡度由设计提供,沟体净深 H≤3m 时,开挖坡比为 1:1; 沟体净深 H>3m 时,开挖坡比为 1:1.5。开挖断面示意如图 5.2.2 所示。

图 5.2.2 梯形明沟开挖断面图
5.2.3 水沟垫层施工
沟槽开挖后,按照程序进行试验检测及验槽工作,验收通过后进行垫层施工,按照设计要求在沟 底铺设 300g/㎡反滤土工布及 10cm 厚碎石垫层。按照设计要求每侧面间距不大于 3m 设置直径 10cm 的 PVC 管滤水孔及土工布包碎石,设置完成后侧壁喷射 5cm 厚水泥砂浆喷射施工,如图 5.2.3-1 所示。
喷射前在沟侧壁上使用砂浆梅花形布置打靶并洒水湿润,保证喷射厚度均匀性及砂浆与底部的结合性。
垫层施工要先施工沟底碎石部分后施工沟侧壁水泥砂浆部分。水沟垫层施工尽量超前,为沟体混凝土施工提供充足作业面。如图 5.2.3-2 所示。

图 5.2.3-1 梯形明沟垫层喷浆

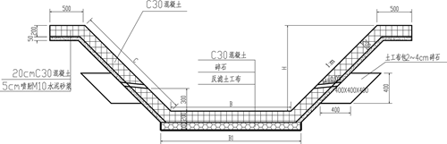
图 5.2.3-2 梯形明沟结构断面图
5.2.4 钢筋绑扎

本施工工法采用钢筋绑扎的工艺与常规施工方法相同,按照设计要求进行即可。沟侧壁钢筋网片采用 Φ8@200 双向布置,且钢筋网片伸入沟底和水沟上口外延均不小于 40cm。沟体配筋及钢筋绑扎见下图。
图 5.2.4-1 沟体配筋图
图 5.2.4-2 梯形明沟钢筋绑扎
5.2.5 模板安装
模板安装时先安装槽钢侧模,根据沟壁设计厚度选择对应型号的槽钢作为侧模。模板下端直接抵紧沟底,使其上表面与底板顶面设计高度齐平,并调整其坡度至设计坡度后打入钢筋固定牢固。若槽钢与坡面间存在间隙,则使用木方或木板衬垫,减少模板与沟体侧壁间的缝隙,防止混凝土浇筑时漏浆。沟底及沟顶延伸部分亦安装钢模板,根据设计标高选用宽度合适的模板安装固定即可。
5.2.6 混凝土浇筑
1
浇筑混凝土前,将垫层表面洒水湿润并清理施工区域内杂物。对现场所有施工机具进行全面清 洗,防止带泥作业。混凝土浇筑顺序为先底板后侧壁,混凝土坍落度控制在 80-100mm。浇筑时使用挖掘机将混凝土沿模板上沿均匀散布,直至填满且略高于模板表面,保证夯实后混凝土厚度,然后使 用平板振动夯机配合插入式振捣器初步振动夯实。人工拖动振动夯机时,应沿沟体表面均速平稳拖拽, 保证混凝土表层骨料分布均匀,达到夯实效果。

图 5.2.6-1 平板振动夯机振动夯实

图 5.2.6-2 插入式振捣器振捣
2
平板振动机夯实后,使用二辊轴整平振动机进一步夯实,提升时应缓慢平稳,保证二辊轴两端同时上升,以免两侧混凝土受力不均,混凝土表面出现坑洞。本工法中使用的二辊轴长度为 6m,其振动夯实影响范围最大为 5.5m,排水沟每 10m 一个仓位,仓位 5m 位置需加设一道钢管作为二辊轴行进轨道,保证二辊轴能够平稳作业且充分振实沟体整个断面。机器行进过程中注意观察侧壁模板是否有移位现象,若发生模板移位应立即停止,调整固定模板后方可继续施工。初次整平后观察沟体表面是否空鼓、漏洞现象,对于此类位置,人工进行辅助整平补料。人工补料平整后再次使用二辊轴复振整平后方可进入下一工序。

图 5.2.6-3 二辊轴整平振动机初次整平夯实
图 5.2.6-4 初次整平夯实人工辅助补料
3
待表面平整后,使用手持抹光机抹光一次,人工铁抹收面两次。确保表面平整、密实、不露砂, 无明显砂眼、气泡、龟裂等现象。

图 5.2.6-5 收光做面
4
梯形明沟为线型构筑物,采用跳仓法施工。按照设计要求采用 20mm 高压低发泡聚乙烯闭孔泡沫板 10m 设置一道伸缩缝,将施工区域划分为跳仓段和填仓段。接缝应饱满、紧密、均匀,两侧应顺直、平整并贯穿沟底和沟体。按照跳仓法依次施工 ABCD 段,不立即浇筑相邻填仓段,待先浇筑的跳仓段混凝土达到 5Mpa 后返回浇筑填仓段。

图 5.2.6-6 跳仓法施工示意图
5.2.7 养护
混凝土浇筑完成后应立即养护,养护时不得损伤或污染混凝土表面,当日养护方式可采用覆盖塑料薄膜的方式,次日用土工布替换塑料薄膜并使用洒水车洒水养护,保证土工布一直处于湿润状态, 养护时间不少于 7 天。
5.2.8 检查验收
按照《民用机场飞行区场道工程质量检验评定标准》MH5007-2017 对排水沟进行检查验收,水沟沟底应平顺,沟底无阻水,沟内无杂物;检查沟体混凝土强度是否达到设计要求,沟体直线性、高
程、坡度、平整度等是否满足设计要求。
6 安全措施
6.1 建立以项目经理为第一责任人的安全管理组织机构,执行安全生产责任制,明确各级人员的职责,形成有效的安全管理体制。
6.2 对作业人员必须进行安全教育和安全交底,操作人员必须持证上岗。进入施工现场的人员必须戴安全帽、反光马甲、穿防滑靴,电工、焊工应穿绝缘鞋,戴绝缘手套和防护罩。
6.3 沟槽开挖土方若不能实现随清随运,临时堆土距离槽边宜不小于沟槽深度,堆放高度应不大于
1.5 m,坡度应不陡于 1:1;运输车道及施工机械距槽边应有足够安全距离;
6.4 水沟开挖深度达到 2m 及以上时,周边必须设置 1.2m 高防护栏杆,立杆之间不宜大于 2m,防护栏杆喷射红白相间油漆并安装安全警示标语牌;夜间安放反光警示灯;
6.5 雨季施工时做好排水措施,在基坑防护栏杆外侧设置排水沟,避免因雨水浸泡引起边坡塌方;
6.6 建筑施工现场临时用电采用三级配电系统、TN-S 接零保护系统、二级漏电保护系统;
6.7 工人进入施工现场不许打闹、嬉戏;不得酒后施工,不得在非制定地点吸烟、点明火;非机械操作手不得启动机械;
6.8 材料进场、混凝土浇筑时,应有专人指挥倒车,作业区设置警戒线,严禁无关人员进入;
6.9 二辊轴行进过程中,下方不得站人,以防设备脱落伤人;
6.10 夜间施工,照明设施准备完善,施工人员不得疲劳作业。
8 环保措施
8.1 成立以项目经理任组长的文明施工环境保护及绿化领导小组,配备一定量的环保实施人员,认真学习环保知识,共同搞好环保绿化工作。
8.2 遵守国家和地方所有有关控制环境污染的法律和法规,采取必要的措施防止施工中的燃料、油、废料和垃圾以及土方等有害物质对河流的污染。
8.3 遵守当地环境卫生和市容管理要求,遵守噪声、振动、粉尘等环保规定,按照城市文明施工管
理的规定和要求进行。
8.4 焊接作业时应采取有效措施,避免弧光对其他施工人员及周边环境的影响,焊条、焊丝头及焊渣等设置专用容器随时清理。
8.5 施工现场化学品、油品实行封闭式、容器式管理和使用,避免因泄露造成对环境的污染。
8.6 建筑施工垃圾采用容器装运,严禁随意凌高抛撒。施工垃圾及时清运,当天的垃圾当天运走。施工场地内随时洒水,减少扬尘,运输车辆必须冲洗干净后方能离场上路行驶。
9 效益分析
9.1 经济效益
以重庆江北国际机场场道七标混凝土梯形明沟工程为例,采用本工法进行混凝土梯形明沟施工与 传统作业方式相比,施工效率明显提高,施工工期由 120 天缩短为 70 天,工期节约 42%,间接节省了3 名管理人员项目管理费用约 6 万元,节省了 19 名施工作业人工费约 28.5 万元。通过混凝土配合比的优化,混合料中掺入粉煤灰和矿渣,减少水泥用量约 360t,混凝土原材可节约成本 15.5 万元;同时降低混凝土坍落度配合二辊轴振动整平机使用,避免了表面重力型钢模板以及挖机、卷扬机的投入, 节省了机械材料租赁费约 7.5 万元。累计节约成本 57.5 万元,取得了良好的经济效益。
10 工程实例
重庆江北国际机场是成渝地区世界级机场群双核之一,五期改扩建工程完成后将形成 4 条跑道、4 座航站楼的总体布局,重庆江北国际机场 T3B 航站楼及第四跑道工程飞行区场道工程 007 标段是重庆江北国际机场五期改扩建工程的重要组成部分,主要负责本期工程中新建第四跑道 1700 米(总长
3400 米)施工任务以及场内外排水、边坡、围界、房建单体等附属工程施工,其中现浇混凝土梯形明沟总长约 2km,沟体最浅 1.2m,沟体最深 2.5m,沟净宽 0.8m-1.4m,混凝土量约 3000m³,工程体
量较大,施工范围广,工期要求紧张,施工难度较大。本工程采用机场混凝土梯形明沟二辊轴施工工法,弥补了传统施工方法的弊端,解决了本工程项目的难点,确保了混凝土梯形明沟施工质量,提高了排水工程整体施工效率,施工过程中得到了参建单位的高度好评,对于各类机场工程现浇混凝土梯形明沟施工具有较高的借鉴意义。
...